Solgt
Leilighet 8
Meld interessePris fra
4 266 000 kr
Boligtype
Leilighet
Eierform
Eier (Selveier)
Soverom
2
Eldevik Bygg AS
En av de fremste boligleverandørene i Tønsberg-regionen.
Eldevik Bygg AS er forhandler av Systemhus, og en av de fremste boligbyggerene i regionen. Vi har vårt kontor på Barkåker, og opererer innenfor et stort geografisk område i Telemark til Oslo.
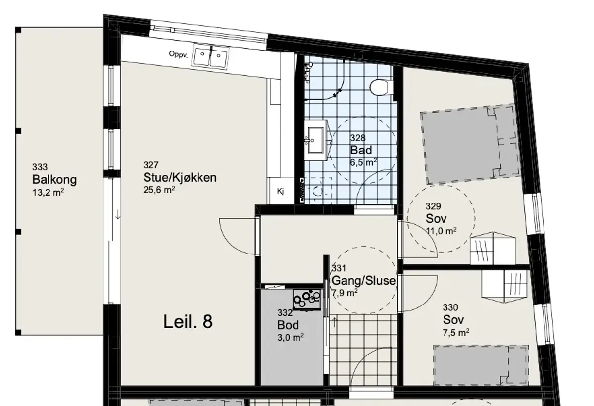
Lekker leilighet i 3.etg med god beliggenhet i sentrum av Sem. Leiligheten har tilgang til heis og består av 2 soverom, flislagt bad, stue/kjøkken, bod og carportplass. Utenom dette kan en også fristes med utsikten fra solstolen på felles takterrasse.
Underteksten finner man plantegning og romskjema. Ta gjerne kontakt med å bruke skjema til høyre om en har spørsmål, eller ønsker å kjøpe.
Leilighet og plantegning
Leilighet 8
Meld interessePris fra
4 266 000 kr
Boligtype
Leilighet
Eierform
Eier (Selveier)
Soverom
2
Eldevik Bygg AS
En av de fremste boligleverandørene i Tønsberg-regionen.
Eldevik Bygg AS er forhandler av Systemhus, og en av de fremste boligbyggerene i regionen. Vi har vårt kontor på Barkåker, og opererer innenfor et stort geografisk område i Telemark til Oslo.
